NEW BROICH das Quartier Lambertz entwickelt sich entlang dieses Begriffspaares und verbindet mit NEW einen Blick in die Zukunft des Zusammenlebens und mit BROICH die Qualitäten eines gewachsenen Ortes. Ein frischer und gesunder Impuls für das vernetzte zukunftsorientierte Weiterentwickeln des Standorts in Broichweiden.
Städtebau
Ein kompakter und zugleich aufgelockerter Siedlungskörper wird vorgeschlagen, mit Mehrgeschossbauten im Inneren die sich zur Umgebung her in Einfamilien- bzw. Reihenhäuser auflösen und eine poröse Anbindung an den Bestand schaffen. Die Bauhöhen respektieren dabei den bestehenden Kontext.
Die fußläufige Hauptachse breitet sich über gelenkförmige Baukörper von der Jülicher Straße in die offene grüne Mitte aus, wird mit anknüpfenden Freiräumen weitergeführt und stellt so die zukünftige aktive Begegnungszone mit vielfältigen Erdgeschossnutzungen da.
Die neue KITA mit ihrem Freiraum wird direkt am offenen Platz angesiedelt und bringt so noch mehr Lebendigkeit in die neue Nachbarschaft rein. Die Bürogebäude schließen als ein eigener Block an die Hauptachse im Norden an.
Zusätzlich zu den privaten Freiflächen werden in den einzelnen Gebäudeblocks großzügig angelegter ´Community´ Gärten als Treffpunkte und Aneignungsflächen gebildet, und große Dachterrassen ergänzen die Auswahl an Verweilflächen.
Ein intelligentes Parkplatzkonzept zieht sich durch das ganze Gebiet durch, mit Tiefgaragen in der Mitte und einem außenliegenden Band an oberirdischen Stellplätzen um die grüne Mitte möglichst verkehrsfrei zu lassen.
Freiraum
Zusammenhängende Grünräume entlang der Wegachsen und dem zentralen Platzbereich, sowie halböffentliche geschützte Hofsituationen bestimmen das Quartier. Die zwei Wegachsen – die nördliche nur für Fußgänger und Radfahrer, die südliche auch für PKW-Erschließung – werden als dicht begrünte Straßenräume in Schwammstadtbauweise ausgebildet. Sie nehmen nicht nur das überschüssige Regenwasser des Quartiers auf, sondern sollen durch Verschattung und Verdunstungskühlung ein angenehmes Aufenthaltsklima im Außenraum schaffen und die Innenraumtemperaturen der angrenzenden Baukörper mittelfristig um zusätzliche 2-3°C im Sommer kühlen.
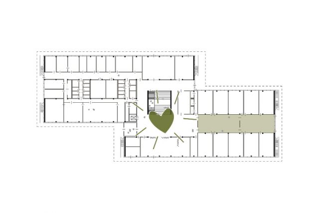
Neue Mitte



Der zentrale Ort des Quartiers bietet viel Platz zur Kommunikation, dem Genuss, der Quartiersversorgung und auch der Arbeit Co-Home-Office (CoHO). Hier gibt es ein Angebot für einen Mittagstisch, der u.a. auch die KITA versorgen kann. CoHO Bereiche bieten die Möglichkeit eines wohnungsnahen Remote-Arbeitsplatzes, der vom Arbeitgeber bedarfsgerecht angemietet werden kann. Auch nicht störendes Kleingewerbe wie ein Bäcker/ Cafe/ Restaurant finden hier Platz.
Wohnraum wird in einer großen Bandbreite von der ein-Zimmer Wohnung für Singles, Studenten über Senioren angeboten und unterschiedliche Wohnungen und Wohnformen machen alten und neuen Broichweidenern ein Angebot für besonderen und bezahlbaren Wohnraum. Die ergänzenden Nutzungen stehen allen auch über das Quartier hinaus zur Verfügung.
Grün und Stadtklima
Wasser gilt als Schlüsselelement der Klimawandelanpassung im urbanen Raum. Dabei sind zwei Aspekte wesentlich:
1. Wasser ist auf Grund seine physikalischen Eigenschaften (Wärmekapazität, Verdunstungsenthalpie) das effektivste natürliche Kühlmittel und der Schlüssel zu urbaner Klimawandelanpassung. Daher werden alle Niederschläge vor Ort aufgenommen, gespeichert und soweit wie möglich über Vegetation verdunstet.
2. Nicht nur Hitzeereignisse werden im Zuge des Klimawandels weiter zunehmen, sondern auch Starkregenereignisse. Die Siedlung muss daher in der Lage sein, Starkregenereignisse aufzunehmen und pluviale Überflutungen zu verhindern.
Durch Retentionsdach-Aufbauten auf den Dächern der Siedlung können 40-60% des Jahresniederschlags gespeichert und verdunstet werden. Überschusswasser wird gezielt in Sickermulden entlang der Fassaden und Wege eingeleitet und dient so als Bewässerung für Staudenrabatten. Die Freiflächen sollen vollständig in Schwammstadtbauweise ausgeführt werden, auf Grundlage einer Structural Soil, die durchwurzelbar und überbaubar ist. Wegoberflächen sind großteils versickerungsoffen ausgeführt.
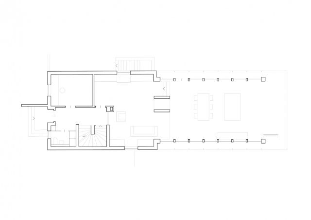
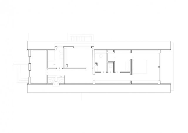
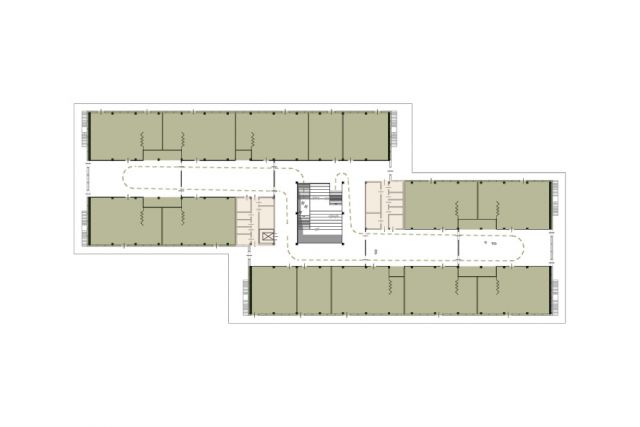
Varioblock
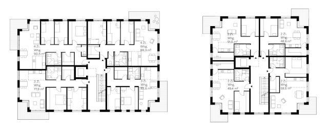
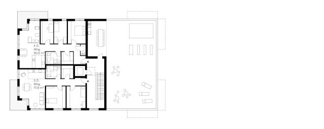
Der Grundriss des Varioblocks bietet die Möglichkeit vielen verschiedenen Bewohnern gerecht zu werden. Die Wohnungen lassen sich in unterschiedlichen Varianten anordnen. An den Seiten liegen 4 oder 5 Zimmer Wohnungen. Diese eignen sich zum Beispiel für Familien oder Wohngemeinschaften. Mittig liegen 1,2 oder 3-Zimmer-Wohnungen. Sie eignen sich zum Beispiel für Singles, Studenten, Senioren oder Alleinerziehende.
Die Tragstruktur ermöglicht die Erweiterbarkeit oder auch Verkleinerung des Gebäudes durch Zuschaltung von Schotten. Fügt man zwei Gebäude über Eck aneinander, wechselt die Richtung der Schotten und die Orientierung der Räume.
Holzbau
Die Gebäude werden in nachhaltiger Holzbauweise geplant. Eine Ausführung mit KfW 40 tauglichen Außenbauteilen, den erhöhten Schallschutzanforderungen gemäß DIN 4109 Beiblatt 2 und den Regelungen der MHolzBauRL (Stand 23.06.21) wird dabei berücksichtigt. Die Decken bestehen bei den Mehrfamilienhäusern aus sichtbarem Brettsperrholz, bei den Einfamilienhäusern können diese wahlweise auch als (sichtbare) Holzbalkendecken ausgeführt werden. Die tragenden Innenwände der Gebäude in GK4 werden in Massivholzbauweise und die Außenwände als nichttragende Holzrahmenbauwände, in denen ein Stützen-Riegel-System integriert ist, geplant, um die aufwendige Kapselung der Holzrahmenbauteile gemäß MHolzBauRL zu umgehen.
Material

Die Erscheinung lehnt sich an den Farbkanon des Ortes an. Mit den Holzbauten im Cradle-to-Cradle Ansatz, dem grünen Energiekonzept wird hier beispielhaft der besonders schonende Umgang mit Ressourcen, die maximierte Recyclingfähigkeit und ein minimierter CO2-Fußabdruck umgesetzt. Der Abbruchziegel bleibt als Beimischung im Bereich des Fassadensockels und aktives Granulat der Freianlagen am Ort.




























































































































































